D
Portifólio
AMANDA KOKOS DALOCO
2024

APARTAMENTO STUDIO
Softwares utilizados: Autocad / SketchUp / Enscape
informações
Ano/período: 2022.01
Autores: Amanda Kokos
Arquivo base: Lev Design
Projeto de estudo- Apartamento Studio
PLANTAS DO APARTAMENTO STUDIO
Duas versões do apartamento studio.


Levando como princípio a elaboração de um studio de 27m² para airbnb, o projeto foi elaborado por meio do arquivo base disponível pela empresa Lev Design durante um de seus concursos que ocorreram no início do ano de 2022. Todo o desenvolvido teve como objetivo proporcionar um ambiente confortável e multifuncional para possíveis moradores, de forma a criar um recinto que agradasse a diferentes tipos de pessoas.
PLANTA ORIGINAL DO PROJETO
PLANTA REFORMULADA DO PROJETO
PALETA DE CORES






Todo o apartamento apresenta uma paleta de cores clara, concebendo a sensação de uma ampliação do ambiente. Além disso, o projeto apresenta diversas prateleiras e armários garantindo que os moradores tenham espaço de sobra para armazenamento.
Um outro ponto do projeto foi a elaboração de uma divisória entre a sala e o quarto. Essa divisória apresenta um nicho e um painel giratório permitindo que os moradores tenham a liberdade de priorizar onde desejam assistir televisão, algo que está diretamente alinhado com o objetivo desse projeto, a funcionalidade.

informações
Ano/período: 2022.01
Autores: Amanda Kokos
Disciplina: Ateliê Projeto III
Orientador: Mario Durão
Projeto acadêmico - 3° semestre
EDIFÍCIO HÍBRIDO NAPI
Softwares utilizados: Autocad / SketchUp / Enscape


Rua Borges de Figuereido

ELEVAÇÃO SUL DO EDIFÍCIO HÍBRIDO NAPI

FACHADA LESTE DA CASA VANORDEN REFORMULADA
Composto de térreo mais 5 pavimentos, o edifício híbrido Napi foi projetado para servir de moradia para diversos tipos de pessoas e famílias. O programa de necessidades contava com 3 tipologias de apartamentos, um de 50m² com um dormitório, sala, banheiro, cozinha pequena e uma área de serviço acoplada, um apartamento de 70m² com 2 dormitórios, um lavabo, cozinha, mini área de serviço, um banheiro, uma sala de TV e uma área para alimentação e outro com 90m² com uma suíte, dois dormitórios, cozinha, sala, lavabo, um banheiro, uma área de serviço e uma sala de jantar. Todas essas tipologias deveriam ser distribuídas no edifício de forma a totalizar aproximadamente, 6.500m², além da área de comércio e serviços que deveria
totalizar aproximadamente, 2.500m². O terreno localizado no bairro da Mooca apresenta As Antigas Officinas Casa Vanorden, que atualmente está tombada, e por isso, uma das diretrizes do projeto seria elaborar um layout de possíveis atividades que os galpões poderiam abrigar. Além disso, foi necessário a criação de uma transposição da ferrovia que se conectaria ao complexo tombado da Cia. Antarctica.

PLANTA REFORMULADA DO PRIMEIRO PAVIMENTO DA CASA VANORDEN

PLANTA REFORMULADA DO SEGUNDO PAVIMENTO DA CASA VANORDEN


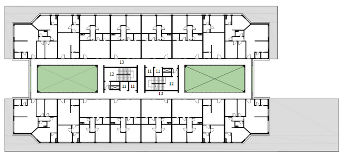
PLANTA DO PAVIMENTO TIPO
PROJEÇÃO DO PAVIMENTO TÉRREO
PLANTA DO PAVIMENTO TÉRREO
PROJEÇÃO DO PAVIMENTO TÉRREO

O pavimento tipo conta com quatro apartamentos de 90m², oito apartamentos de 70m², e quatro apartamentos de 50m². Além disso, cada andar conta com 4 elevadores e duas escadas de incêndio. A circulação nesse pavimento é feito por corredores que contêm aberturas nas faces Sul e Norte, e por esse mesmo motivo existente painéis ripados para permitir um controle em relação a ventilação e incidência solar, trazendo mais conforto aos moradores.
1
2
9
8
3
6
7
4
5
PLANTA DO APARTAMENTO DE 90m²
6
7
8
5
4
2
1
3
PLANTA DO APARTAMENTO DE 70m²
6
8
10
2
3
1
4
PLANTA DO APARTAMENTO DE 50m²
PLANTA DA COBERTURA
10. ESCRITÓRIO
11. ELEVADOR
12. ESCADA DE EMERGÊNCIA
13. CORREDOR
14. ÁTICO
15. ÁREA DE LAZER MORADORES
16. DECK
17. COMÉRCIO
18. CIRCULAÇÃO VERTICAL TRANSPOSIÇÃO
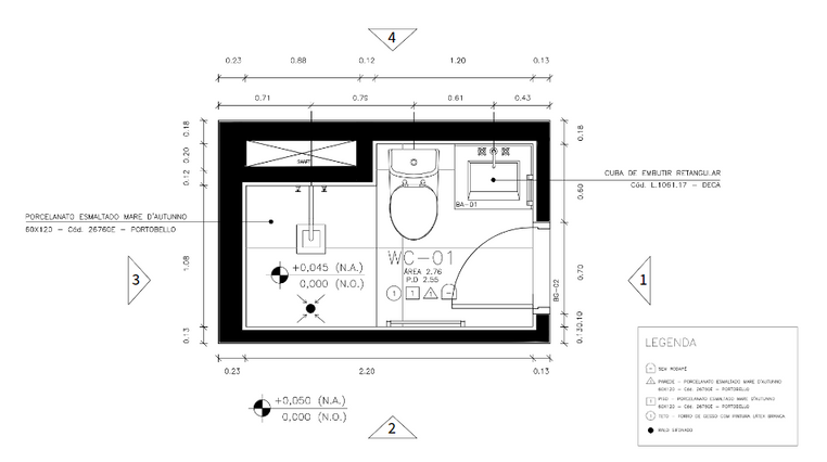
DETALHAMENTO DO BANHEIRO DO APARTAMENTO DE 70m²
Uma das últimas etapas do projeto contava com o detalhamento de um banheiro dos apartamentos projetados.
VISTA 2 BANHEIRO
VISTA 3 BANHEIRO
VISTA 1 BANHEIRO
VISTA 4 BANHEIRO
4
RENDER DO BANHEIRO

VÍDEO DO PROJETO

PLANTA DO BANHEIRO DO APARTAMENTO DE 70M²

informações
Ano/período: 2023.01
Autores: Amanda Kokos
Disciplina: Atêlie Projeto V
Orientador: Joan Villa
Projeto acadêmico- 5° semestre
RECINTO ECLIPSE
Softwares utilizados: SketchUp / Enscape
CONCEPÇÃO DO RECINTO ECLIPSE



A ideia por trás desse recinto foi de unir dois símbolos celestiais, a lua e o sol, que apresentam diversos significados em muitas culturas ao redor do mundo, geralmente quando posicionados juntos, representam harmonia e a complementaridade de forças opostas.
Levando isso em consideração, o projeto buscou em representar o significado de harmonia através de muros internos, que sofrem pequenas variações de alturas, e que são posicionamos repetidamente em uma forma circular, representando os raios solares. Já as forças opostas, foram representadas pelos muros externos e a discrepância de altura entre ambos, o menor com 3.5 metros e o maior com 7 metros.


PLANTA FINAL DO PROJETO


ELEVAÇÃO NORTE
PAISAGISMO
Para o paisagismo foram adotados 3 tipos de árvores:
- Oiti (árvore de pequeno porte)
- Ipê Cascudo (árvore de médio porte que apresenta coloração amarela)
- Bordo Japonês ( árvore de grande porte que apresenta coloração avermelhada)
A escolha dessas árvores teve como principal motivação a criação de um paisagismo colorido e com diversas alturas.


1. Bordo Japonês
2. Oiti
3. Ipê Cascudo


Todo o conceito do projeto foi elaborado por meio de elementos curvos que remetem aos símbolos celestiais, além de muros retos no centro do recinto que representam uma estilização dos raios de sol, assim como os próprios contrafortes do muro de 7 metros.
CORTE A.A - HUMANIZADO



visão mostrando espelho d' água
visão da lateral norte para centro do recinto
visão do centro do recinto para o leste




informações
Ano/período: 2023.01
Autores: Amanda Kokos
Disciplina: Atêlie Projeto V
Orientador: Joan Villa
Projeto acadêmico- 5° semestre
CASA CUBO
Softwares utilizados: SketchUp / Enscape / Layout
ESTRUTURA DA CASA CUBO



01. PILARES, VIGAS E CONTRAVENTAMENTO
02. VIGAS SECUNDÁRIAS ADICIONADAS
03. PISOS E LAJE ADICIONADOS A ESTRUTURA
04. ESCADA NA VOLUMETRIA FINAL DA ESTRUTURA
A Casa Cubo de 3 Dormitórios foi projetada com o objetivo de oferecer um ambiente funcional, onde cada espaço é cuidadosamente otimizado para proporcionar conforto e praticidade. O conceito de aproveitamento de espaços foi aplicado em todos os cômodos, garantindo uma distribuição inteligente e eficiente.
No andar térreo, estão localizados todos os cômodos sociais, criando um ambiente amplo e integrado. A sala de estar, com seu confortável sofá, convida à convivência e ao relaxamento. A sala de jantar, próxima à cozinha, é ideal para refeições em família e momentos de confraternização. A cozinha foi projetada de forma inteligente debaixo da escada, utilizando cada centímetro disponível. Com armários planejados e bancadas funcionais, oferece uma área de preparo de alimentos prática e eficiente.
Outro exemplo notável de otimização de espaço é a lavanderia, que foi integrada dentro de um armário com portas em ripa de madeira. Esse design discreto e inteligente permite que a área de serviço esteja escondida quando não estiver em uso, mantendo a estética da casa sempre impecável.
No mezanino, acessado por uma escada, encontram-se os três quartos da casa. O primeiro quarto, encontrado mais próximo da escada, apresenta uma cama e um ármario, com fechamento em paineis de correr. Já os outros dois quartos, pensando em um melhor aproveitamento do espaço, foi projetado uma beliche, porém com aberturas para lados diferentes, criando privacidade para quem ocupar dos quartos, além de servir como divisor do espaço.

CORTE PERSPECTIVADO DA CASA CUBO


Um desafio proposto no projeto, era de que a casa criada deveria ser implementada sem sofrer nenhuma alteração por toda uma quadra, de forma a resultar em 160 residências, açém de 12 comércios no térreo do terreno.
Embora essa fosse a etapa final do projeto, foi concerteza algo que impactou nas escolhas tanto do layout interno, como do posicionamento de janelas e das paineis, além do beiral, trazendo privacidade, sombra e elegãncia ao projeto.




FACHADA 01

FACHADA 03
ARQUITETURA E URBANISMO